•  (+30) 2310-721621
  •  info@best-house.gr
  •  Δευ - Παρ 9:00 - 20:00

Αγορά € 110.000

Διαμερίσματα 50τμ έως 89,65τμ, Λ7384

Νικόπολη, Σταυρούπολη  (Θεσσαλονίκη Δυτικά)

2025
1ο έως 6ο
1 Μπάνιο
1 Parking
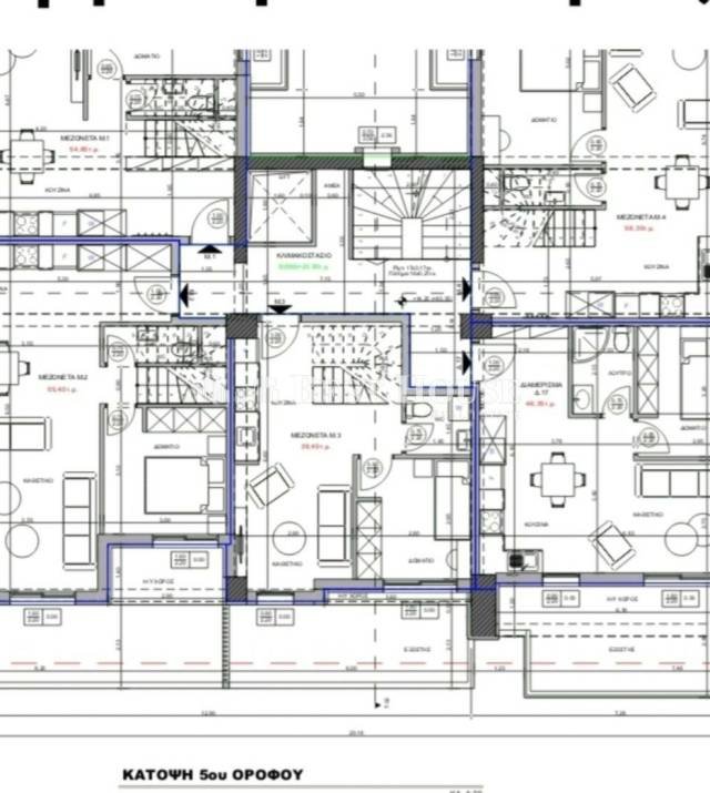
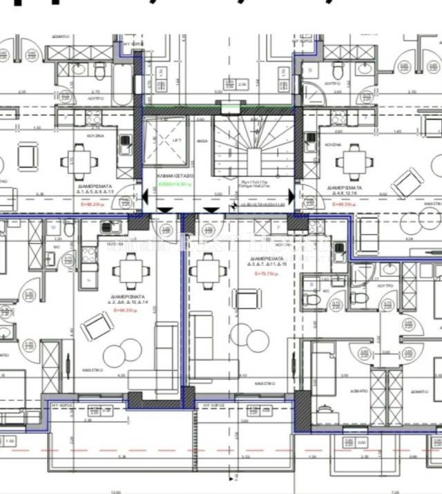
  1.    Νικόπολη πωλούνται νεόδμητα διαμερίσματα σε πολυκατοικία κατασκευής 2025. Διατίθενται από τον 1ο όροφο έως τον 6ο. Αφορούν 1 γκαρσονιέρα 50τμ και διαμερίσματα δύο και τριών υπνοδωματίων. Όλα έχουν ατομική θέρμανση αερίου και αποθήκη στο υπόγειο. Τα περισσότερα διαθέτουν θέση στο πάρκινγκ. Τιμές από 110.000€ έως 258.000€

    Ενεργειακή Κλάση Α+.
  2. ΓΙΑ ΤΗΝ ΥΠΟΔΕΙΞΗ ΤΩΝ ΑΚΙΝΗΤΩΝ ΜΑΣ ΘΑ ΠΡΕΠΕΙ ΝΑ ΠΡΟΣΚΟΜΙΣΕΤΕ ΣΤΟ ΓΡΑΦΕΙΟ ΜΑΣ ΑΣΤΥΝΟΜΙΚΗ ΤΑΥΤΟΤΗΤΑ Η Α.Φ.Μ.
  • Ενεργειακή κλάση Α+
  • Ασανσέρ
  • Ατομικό Αέριο

Νικόπολη, Σταυρούπολη, Θεσσαλονίκη Δυτικά

Ώρες Λειτουργίας

  • Δευτέρα  09:00-17:00
  • Τρίτη  09:00-20:00
  • Τετάρτη  09:00-17:00
  • Πέμπτη  09:00-20:00
  • Παρασκευή  09:00-20:00

Best House - Μεσιτική Eταιρεία, Αμπελόκηποι Θεσσαλονίκη

Newsletter

Υποχρεωτικό πεδίο.